Wohnbaustiftung Baden

Brisgi-Areal

Drei gemeinnützige Organisationen schaffen auf dem Brisgi-Areal bezahlbaren Wohnraum. Die Wohnbaustiftung Baden handelt im städtischen Auftrag, die Logis Suisse AG schafft und fördert fairen Wohnraum, die Liegenschaften der Graphis Bau- und Wohngenossenschaft werden vorwiegend von ihren Genossenschafterinnen und Genossenschaftern bewohnt. Jede der drei Bauträgerinnen wird eine der drei Hofbauten realisieren.
Brisgi-Areal
Brisgi-Areal
Brisgi-Areal
Brisgi-Areal
Brisgi-Areal
Brisgi-Areal

Bauträgerinnen

Architekten/Generalplanung:

Gesamtprojektleitung/Bauherrenvertretung


Weitere aktuelle Projektinfos finden Sie hier: www.brisgi-areal.ch


Areal

Der Landschaftsraum «im Brisgi» liegt zwischen der Zuglinie Baden-Brugg und dem bewaldeten Limmatufer. Dieser verfügt über eine eigene und ganz besondere Atmosphäre. Die bestehende Bebauung mit zwei Punkthäusern und einem Hochhaus ist lose angeordnet und heute stark unternutzt. 

Städtischer Auftrag

Die Wohnbaustiftung erhielt 2012 von der Stadt Baden den Auftrag, das Areal im Baurecht zu übernehmen, zu entwickeln und an diesem einzigartigen Ort kostengünstigen Wohnraum zu schaffen, vorallem für Familien in allen möglichen Konstellationen. Damit verbunden erwartet die Stadt ein künftig lebendiges Stadtquartier.

Mittels  Architekturwettbewerb wurde 2016 das Planungsteam Meier Leder aus Baden und Müller Sigrist aus Zürich gefunden, welches diesen Auftrag in besonders überzeugender Art und Weise in ein Projekt umsetzte.

Drei Bauträgerinnen

Für die neu gegründete Wohnbaustiftung war das Vorhaben zu gross. Sie suchte deshalb nach geeigneten Partner:innen, welche die Grundhaltung der Gemeinnützigkeit teilen. Mit der Bau- und Wohngenossenschaft Graphis und der Logis Suisse AG konnten äusserst erfahrene, kompetente und verlässliche Bauträgerinnen gefunden werden. 

Siedlungskonzeption

Die räumliche Konzeption der neuen Siedlung bildet gemeinsam mit den Bestandsbauten ein eigenständiges kleines Quartier. Durch das Hinzufügen von drei Gebäudegruppen, die jeweils einen geschützten Innenhof umstehen, entsteht zwischen den Wohnbauten viel frei zugänglicher Aussenraum, der mit offenen Wiesen Raum schafft für Spiel, Aufenthalt, nachbarschaftliche Treffen und Erholung. Der neu geschaffene Ort im Zentrum des Areals dient den Neubauten als auch den bestehenden Bauten als gemeinsamer Quartierplatz. 

Cluster

Jede Bauträgerin übernimmt einen der drei «Cluster» und damit auch den zugehörigen Hof, der in der steil abfallenden Topografie eine Zwischenebene schafft zwischen Brisgistrasse und dem Niveau von Quartierplatz und bestehendem Hochhaus. 

Die Wohnbaustiftung Baden hat sich seit Beginn der Entwicklung für den mittleren Cluster entschieden. Neben dem Schaffen von Wohnraum erfüllt dieser Cluster auch halböffentliche Aufgaben. Hier sind die allgemein zugänglichen Liftanlagen, welche die hindernisfreie Verbindung schaffen zwischen Quartierplatz und Brisgistrasse. 

Wohnhäuser

Jeweils drei Häuser bilden einen Innenhof. Die Höfe werden von breiten Laubengängen umfasst, welche sämtliche Wohnungen erschliessen. Nach Innen gerichtet entsteht das gemeinschaftliche Zentrum der Siedlungsgemeinschaft und deren nachbarschaftlichen Interaktion. Alle Wohnungen verfügen zusätzlich über eine dem Hof abgewandte Seite mit Balkon Richtung Grünfläche und Flussufer. 

Wohnung

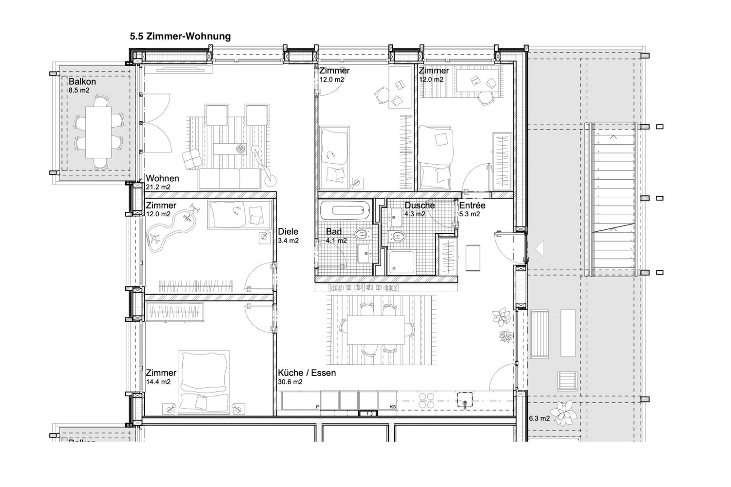
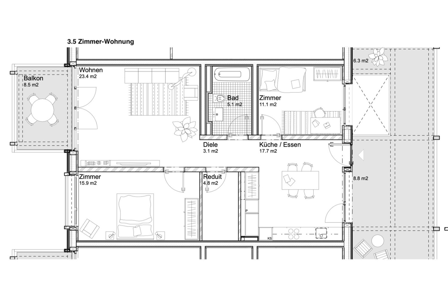
Mit der Laubengangerschliessung haben die Architekten die Grundlage geschaffen für einen ganz für diesen Ort konzipierten Grundrisstyp. Die Wohnungen haben mit einer Wohnküche Anteil am lebendigen Hof, Wohnzimmer und Schlafräume sind zum Flussufer ausgerichtet. Die Wohn-/Essräume sind miteinander verbunden, was den Wohnungen eine Grosszügigkeit gibt.


3.5 Zimmer
3.5 Zimmer
4.5 Zimmer
4.5 Zimmer
5.5 Zimmer
5.5 Zimmer